logo Activ Travaux
Conception Aménagement Intérieur / Projet Validé en cours - Saint-Memmie

Conception Aménagement Intérieur / Projet Validé en cours

 Du 02/12/2024 au 21/01/2025
 Ecrit par : Activ Travaux Reims Est
 Temps de lecture : 2 minutes
  Mis à jour le : 3 novembre 2025

Dans le cadre de notre dernier projet d'architecture d'intérieur, nous avons collaboré avec une architecte partenaire pour concevoir un aménagement sur mesure. Cette étape de conception a permis aux clients de se projeter pleinement dans leur futur espace. Aujourd'hui, le projet a été validé et les travaux ont déjà débuté, amorçant ainsi la transformation du lieu.


Importance de la Conception d'Architecture d'Intérieur Avant le Début des Travaux



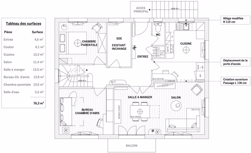
Périmètre des Travaux

La conception d'architecture d'intérieur permet de définir clairement le périmètre des travaux à réaliser. Cela inclut l'identification des espaces à rénover, les modifications structurelles éventuelles, ainsi que les améliorations esthétiques et fonctionnelles. Avoir une vision claire du périmètre aide à éviter les imprévus et à gérer efficacement le budget.




Coordination et Collaboration

Travailler en collaboration avec une architecte d'intérieur permet de coordonner efficacement les différents intervenants du projet. L'architecte joue un rôle central dans la communication entre les clients, les entrepreneurs, et les artisans, assurant ainsi que tous les aspects du projet sont alignés et que les délais sont respectés.




Inspiration et Créativité

L'architecte d'intérieur apporte une touche créative et inspirante au projet. Grâce à son expertise, elle peut proposer des solutions innovantes et esthétiques qui répondent aux besoins et aux goûts des clients. Cette phase de conception est cruciale pour explorer différentes idées et choisir les meilleures options pour l'aménagement intérieur.




Projection Visuelle

La conception inclut souvent des projections visuelles, telles que des plans 3D et des maquettes, qui permettent aux clients de visualiser le résultat final avant le début des travaux. Ces outils sont essentiels pour s'assurer que la vision du projet est partagée par tous et pour effectuer des ajustements si nécessaire avant le lancement des travaux.



Partager
Activ Travaux Reims Est
Contacter

Trouver l’agence proche de chez vous